CAD

【最新版 図面料金表】2D図面・ CADトレース外注方法~3Dパース・設備図も対応可~

こんにちは!Joh Abroad(ジョーアブロード)の上田です。

現場では「新規作成の時間がない」「図面データが残っていない」「紙図面しかなく修正できない」といった悩みがよくあります。
そんなときに便利なのが2D図面作成・トレース外注です。手書きスケッチやPDFデータ・写真などからでも正確なCADデータとして図面を再現することができます。
この記事では、外注の内容・依頼の流れ・納期、さらに 2Dから3D化への展開 までコンパクトに解説します。

2D図面作成・CADトレース外注とは?

「2D図面外注」とは、手書きや紙の図面、PDF、写真などの資料をもとに、CADデータとして図面を作成するサービスです。

例えば、

  • 既存建物が古くて図面が残っていない

  • 改修やリフォームのために図面をデータ化したい

  • 紙図面をCAD化して社内で共有したい

といったケースでは、CADトレース外注は効率的な方法です。

元になる資料が手書きや写真でも、既存情報をもとに正確なトレース図を作成し、データ化することが可能です。
設計担当者が一から図面を描く手間を省けるため、外注を活用することで作業効率を大幅に向上できます。

どんな資料からでもCADトレースが可能なため、業務のスピードアップや社内の生産性向上にもつながります。

どんな資料からでもCADトレース可能

トレース図作成では、元となる資料の状態に応じて柔軟に対応できます。
対応可能な主な資料は次の通り

  • 手書きスケッチ(寸法入りのラフ図など)

  • 紙図面(スキャンしたPDFや画像)

  • 建物写真(撮影した外観・間取り写真)

上記以外の資料でも対応できる場合がありますので、まずはご相談ください。

これらの資料をもとに、平面図・立面図・断面図・配置図など、2D図面を正確に作成いたします。

また意匠図だけでなく 設備図(給排水設備図・空調設備図)・ 電気設備図(照明・配線・コンセント計画 など)の作成にも対応しています。

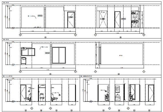
<例:展開図>

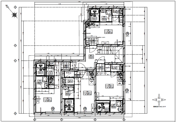
<例:平面図>

主な対応可能ソフトウェア

対応可能ソフトウェア

2D-CAD3D-CAD設備CAD
JW-CAD

AUTO-CAD

ARCHI TREND

Revit

Archi CAD

3dsMax

Blender 

SOLID WORKS

Tfas 

Rebro

※設備設計も対応可

お客様の使用環境に合わせて納品データ形式を選べるため、外注後の修正や追加作業もスムーズです。
※簡易的な修正は2回まで対応可※

 

ARCHI TRENDを使用すれば、作成した2D図面から3Dパースを作成することも可能です。

<例:3Dパース>

料金表と外注依頼方法

ご依頼内容や図面の種類によって料金は変わりますが、一般的な目安は次の通りです。

NO.図面項目単価(円)
1配置図7,000~
2平面図・立面図・断面図9,000~
3矩計図9,000~
4平面詳細図9,000~
5部分詳細図9,000~
6展開図7,000~
7建具表7,000~
8電気設備図・給排水図面7,000~

依頼の流れ

1.元データの共有
 手書き図面・写真・紙媒体・PDFなどをお送りください。

2.使用CADの選択
 ご希望のCADソフトをお知らせください。
 (JW-CAD、Auto-CAD、ARCHI TRENDなど)

3.納期と見積り確認
 作業内容によって異なりますが、最短2日~納品可能

 

Joh Abroad(ジョーアブロード)について

私たちはベトナム・ネパールに自社CADセンターを設置し、建築・設備分野に精通した技術者がチームを構成。

さらに、日本の大学で建築を学び、国内ゼネコンで豊富な実務経験を積んだマネージャーが品質管理とプロジェクト指導を行っています。

この独自の体制により、日本の設計基準を踏まえた正確性と、日本国内で進める場合と比べて最大30% ~50%コスト削減を実現しております。

お気軽に無料相談・お見積りをご依頼ください。

3Dパース料金や各種図面作成の費用一覧はこちら

~お問合せ~

    会社名(必須)

    氏名(必須)

    メールアドレス(必須)

    電話番号(必須)

    会社所在地-都道府県(必須)

    役職

    お問い合わせ内容

    差し支えなければ、弊社を知ったきっかけを教えてください。

    -CAD
    -

    ©2021 株式会社Joh Abroad